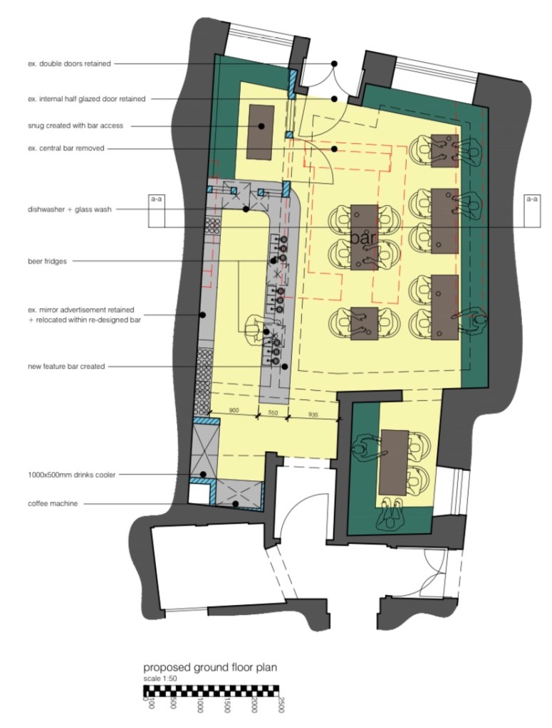
Conservation – Town Arms, Selkirk




Category B listed building regeneration
The regeneration of the public house internal layout had to be carefully balanced + assessed against the historic + socially important features within the building. A detailed conservation report was prepared by ourselves charting the buildings history, varied uses + categorising all elements within the property to ensure that any changes were either historically relevant + maintaining all features, whilst ensuring the long term economic viability of the business.
grange view






CIAT AT awards 2019 – alan king award – winner
A contemporary low energy, accessible dwelling house formed within a former walled garden formed to nestle into the existing streetscape. Due to our clients limited mobility the dwelling had to be designed to allow for full accessibility without this being obvious, as the site was surrounded on 3 sides with mature trees + a public road to the 4th the use + deflection of light into the dwelling was paramount.
The pallet of materials both respected the traditional surroundings whilst also making its own statement.
craighall terrace






scottish design awards 2018 – shortlisted
A bright spacious contemporary live/work accommodation was achieved by the use of an extruded black zinc dormer complimented by double glazed new crittal windows with narrow board larch cladding integrating it into the roofscape forming a private office level, at ground floor a clean + simple flat roof extension benefiting form matching black zinc fascias linking again with crittal windows + natural stone.
The internal space was linked to the Dining/Kitchen space to form a stepped family hub, additional features were the addition of high level “slot” windows located just below ceiling level which provide a filtering of light at differing times of the day, bathing a previously dark space in light.
the rink

CIAT AT awards 2019 – alan king award – commended
The clients brief was to create a high spec, low impact + “honest” property catering for luxury short breaks.
This was achieved by the building being formed with a continual curved glazed frontage pinned either side by 2 curving natural dry stone walls rising from the ground to join the building. 70% of the finishing materials
were sourced within a 10 mile radius of the site, all of the stone taken from nearby redundant walls + the douglas fir timber from a nearby copse which was felled, milled + seasoned on site.
the grange

CIAT AT awards 2018 – alan king award – highly commended
The concept of the project was to reinvigorate a dated traditional dwelling house + create a contemporary “family hub” for our clients growing family to enjoy mixed internal use + also create a direct interaction point with their garden.
This was achieved by creating a simplistic contemporary insertion to the private garden façade of the dwelling, utilising a mixture of traditional materials such as slate roofing with VM Zinc clad fascia’s + posts along with high performance aluminium clad windows forming the main exterior fabric.
The original kitchen was absorbed into the new “hub” with the large-scale removal of the former external walling.
3 scotts place




Our clients brief was to create a light + spacious dwelling respective of its surroundings leading to the “active corner” design.
The concept to flip the living spaces with bedroom at ground floor flowing into the private garden + “pend” access. This allowed the upper floor, formed from a single skin timber frame to maximize space, accessed from the open stairwell to a vaulted “living hub” space, opening up further to a small terrace (stepped back to the adjacent building line).
The materials palette is very simple + honest, break up the main elevations reducing the impact of height on a small property, with added features such as hidden rainwater goods + windows designed to create a contemporary version of adjoining buildings blend the contemporary design into the streetscape.
Conservation – Courthouse Carriage Lamp




We were commissioned to carry out the refurbishment of the Carriage Lamp located above the historic entrance doors to Sir Walter Scott’s Courthouse in Selkirk.
We worked with out clients to obtain match funding to fully restore the lamp along with re-introducing some original features lost to the past.
Following assessment + record surveying, a conservation plan was made for the lamp allowing it to be stripped back, exposing all of its original features including cast brasswork, replacement glass which now sports the town crest to the front section + the Selkirk merchant Company crest to either side sections has been fitted + small section such as finials which have been lost in time re-installed. The original bracket has been removed + replaced with a new period style scrolled single bracket which better matches the style of lamp. All electrical supplies were replaced + concealed within the frame + reflective canopy fitted internally.
